


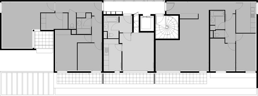
Livraison: Septembre 1998 Maître d’Ouvrage: SORINVEST Architecte Mandataire: Philtre BET tce: Bateg Aménageur: SEMEA XV Coût travaux: 0,7 M€ht SHON: 860 m2 Projet issu du concours “Appel aux jeunes architectes” lancé par le pavillon de l’Arsenal. Chacune des 5 équipes lauréates s’est vue attribuer une partie du plan d’ensemble établi par R. Schweitzer architecte coordonateur 2 projets = 1 bâtiment: Projet établi en concertation avec Ph. Delannoy, architecte du lot voisin afin d’assurer l’unité architecturale de l’ensemble. Créer une placette: Une partie de l’emprise constructible est délibérément attribuée à la rue piétonne afin de créer un petit espace public au coeur de l’opération. Echapper aux vis-à-vis: Les logements interposent systématiquement un espace extérieur spacieux entre la façade chauffée et la rue piétonne et privilégient une ouverture latéralisée afin d’échapper aux vis-à-vis directs avec les bâtiments voisins Un accès aux appartements lumineux et séquencé: Un hall extérieur ample et traversant cadre le ciel. il permet d’atteindre et éclaire la distribution chauffée. On échappe ainsi à la mono-orientation requise a priori par la présence d’une cour d’école à l’arrière du bâtiment.