

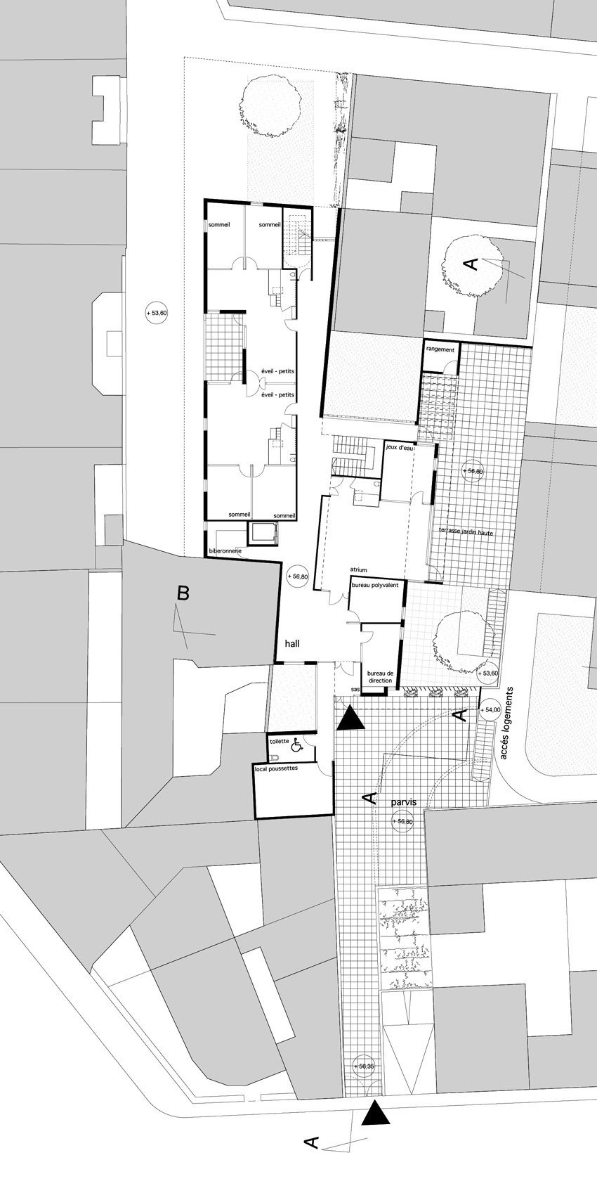
Concours: Avril 2003 Maître d’Ouvrage: Ville de Paris / SIEMP Architecte Mandataire: Philtre / Christophe Massin BET tce: SIBAT Coût prév. (compris vrd): 1,8 M€ht SHON: 935 m2 Le site se caractérise par deux données majeures: •La situation enchâssée en cœur d’îlot et desservie par deux impasses. •La différence de dénivelé entre l’accès Sud par l’impasse Calmels et l’accès Nord par l’impasse Robert Nous avons poursuivi les objectifs suivants 1 •Mettre en «lumière» les espaces extérieurs majeurs du projet en les situant au niveau haut 2 •faire pénétrer la lumière et le Sud dans toute la profondeur de l’équipement mais aussi dans toute la profondeur de l’îlot. 3 •Donner une unité au projet tout en trouvant des réponses circonstanciées au contexte Du parvis se découvre, outre l’invite que constitue l’entrée de la crèche, le développement du projet dans la profondeur de l’îlot. L’auvent marquant l’entrée cadre aussi en effet un filtre constituée par une claie qui laisse percevoir la séquence d’une cour jardin en contrebas, d’une terrasse plus avant et enfin dans la profondeur ainsi dégagée la cour du 5 impasse Robert plantée de hauts arbres (existants). Le projet se développe à partir d’un rez de chaussée haut situé de plein pied avec le niveau d’accès impasse Calmels: permettant d’implanter les espaces liés à la séquence d’accès que sont l’atrium et sa terrasse attenante -espace majeur du projet- dans la situation la plus favorable d’ensoleillement et de lumière. La séquence des vides successifs, cour jardins, terrasses, structure le projet dans la profondeur. Ceci posé celui ci , par son implantation, ses gabarits, se met en relation avec les autres données du site et se les apprivoise, s’efforçant au mieux de ménager des vides ponctuel dont il puisse tout à la fois tirer le meilleur parti tout en dégageant des espaces de respiration pour le voisinage, venant ici ou là masquer une héberge déplaisante, ou encore marquer des différenciations d’échelle. C’est le troisième thème du projet.