

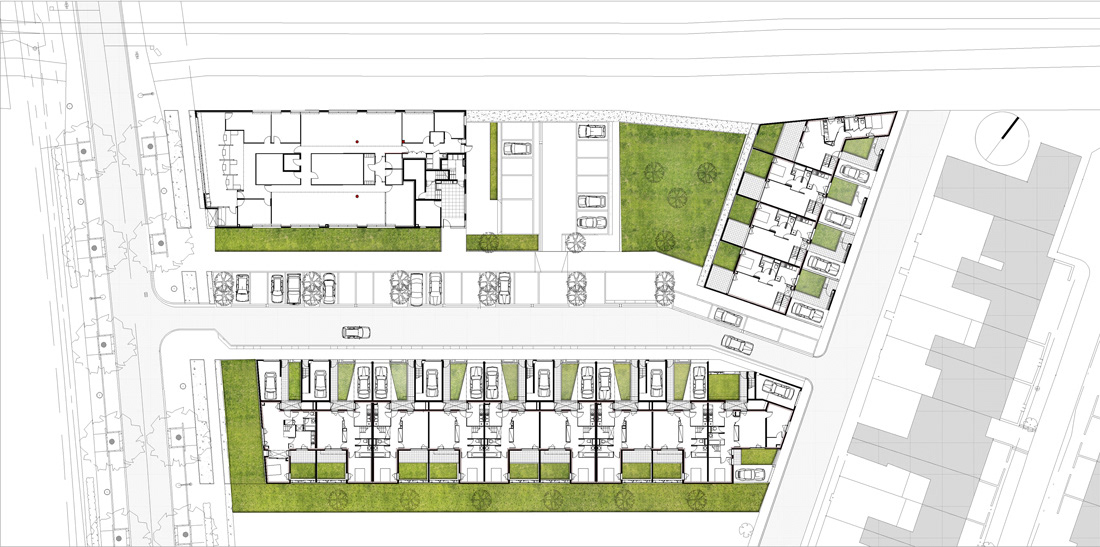
Livraison: Décembre 2006 Maître d’Ouvrage: OPHLM de Saint Dizier Architecte Mandataire: Philtre / H. Dubois, C. Massin Concours: avec A. Amar BET: Forgue,Choulet,Batiserf,Riou Coût travaux (hors vrd): 3,4 M€ht SHON: 3196m2 Dans le cadre de son GPV, la ville de Saint DIZIER aménage une avenue urbaine reconquise sur l’ex RN 4 dont le tracé contourne dorénavant la ville. Dans ce contexte, l’OPHLM engage une opération de renouvellement urbain, après la démolition des immeubles Louvois Vauban. Ce nouvel espace urbain vise à fédérer les secteurs nord et sud de Saint-Dizier. Le présent projet cherche à accompagner la perméabilité urbaine nord-sud dont la future piste cyclable est l’expression. La disposition des éléments bâtis reflète cette intention: -Une unité de logements semi-collectifs accompagnant la voie de desserte se développe linéairement le long de la limite Est du terrain et révèle ainsi la profondeur de celui-ci. - Coté opposé cette profondeur s’organise en séquences successives : - Un bâtiment collectif regroupant les locaux du Trésor Public et dix logements amorce cette ponctuation: En contact direct avec l’avenue, le Trésor Public présente sa façade et manifeste son caractère de service public. Le surplombant en retrait, le plot vertical des logements éloigne ceux-ci des rumeurs de l’avenue tout en leur assurant une double ou triple orientation.Il s’ouvre sur l’espace libéré au cœur de la parcelle ; régulièrement planté d’arbres afin d’éviter tout effet de morcellement, celui-ci constitue le lieu d’identification collective de l’opération. - Enfin, en limite Nord, cinq maisons en bandes matérialisent la façade éclairée du jardin et assurent la transition de l’ensemble avec les maisonnées ouvrières préexistantes au nord. L’organisation du programme sur le terrain est ainsi distribuée sur un nouveau parcellaire, une nouvelle domanialité, identifiable parce que desservie par l’espace public. Les maisons et les logements semi-collectifs disposent d’un terrain clôturé, d’un portail, d’une adresse. Le traitement individualisé se substitue à la banalisation du grand ensemble.