

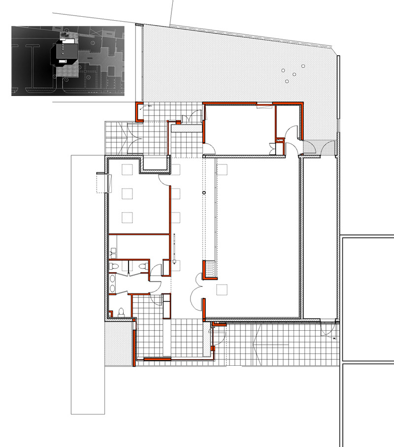
Livraison: Octobre 1997 Maître d’Ouvrage: Université de Paris Nord Architecte Mandataire: Philtre / Christophe Massin BET tce: B. Passalent Coût travaux: 0,2 M€ht (97) SHON: 270 m2 Il s’agit de la transformation et de l’extension de l’ancienne chaufferie de l’Université, afin d’en faire un équipement culturel et associatif comprenant: - Une grande salle pour les répétitions du club de théâtre ou d’autres activités gérées par les associations de l’Université; - Une zone pouvant accueillir de petites expositions et s’ouvrant largement sur la grande salle; - Un labo photo et deux salles pour activités à usage des divers clubs et associations de l’Université; - Un bureau d’accueil, des sanitaires et rangements. L’enveloppe de l’ancienne chaufferie est conservée, son intérieur et ses percements remodelés. Au Nord devant les parkings, une extension est crée pour favoriser l’accueil et offrir une entrée à l’équipement. Au Sud est créée une seconde extension qui contient un bureau et qui permet d’ouvrir la distribution sur le jardin. Les deux extensions constituent les ouvertures extérieures de la distribution des locaux. Plus basses que l’enveloppe de la chaufferie elles jouent du contraste vis-à-vis de cette dernière. Ceci par leurs dimensions, par un traitement architectural détaillé en regard du bloc monolithique de la chaufferie, enfin par leur caractère ouvert et accueillant. Un large parvis minéral (associé à une rampe) permet de se détacher de la cour existante revêtue d’asphalte et contribue à créer l’entrée de l’équipement. Venant terminer une série de logements de fonction pour l’Université, cette transformation leur proposera un achèvement plus noble qu’un simple local technique. Les dimensions modestes des extensions permettent de retrouver l’échelle du tissu pavillonnaire alentour.